Nowe mieszkanie Staszica, ul. Moniuszki 31
Moniuszki 31, Staszica, Gorzów Wielkopolski, lubuskie
- 702 512 zł
- 76,36 m²
- 9 200 zł/m²
Marek Prokopiuk
Skontaktuj się
Nowe mieszkanie Staszica, ul. Moniuszki 31
Moniuszki 31, Staszica, Gorzów Wielkopolski, lubuskie
zobacz mapę
zaktualizowane:
14 listopada 2025
Nowe mieszkanie Staszica, ul. Moniuszki 31
Inwestycja: Wzgórze Moniuszki
Zaktualizowane: 14 listopada 2025
702 512 zł 76,36 m² 9 200 zł/m²
kwiecień 2028
parter/3
4
garaż
deweloperski
Zobacz na mapie
Termin realizacji:
kwiecień 2028Piętro:
parter/3Liczba pokoi:
4Miejsce postojowe:
garażStan mieszkania:
deweloperskiSzczegóły ogłoszenia
- Typ oferty: nowe mieszkanie na sprzedaż
- Cena: 702 512 zł (9 200 zł/m²)
- Termin realizacji: kwiecień 2028
- Status oferty: dostępne
- Rynek: pierwotny (oferta dewelopera)
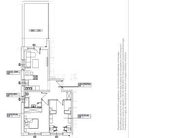
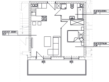
- Charakterystyka mieszkania: 76,36 m², 4 pokoje, 1 łazienka; stan: deweloperski
- Budynek: blok mieszkalny
- winda
- Rozkład mieszkania: piętro 0/3, jednopoziomowe
- Powierzchnia dodatkowa: balkon
- Kuchnia: aneks kuchenny
- Miejsce/a postojowe: w garażu indywidualnym, przynależne do mieszkania - bez obowiązku zakupu (34 miejsca); garaż w bryle budynku
naziemne, przynależne do mieszkania - bez obowiązku zakupu (9 miejsc)
w garażu wielostanowiskowym, przynależne do mieszkania - bez obowiązku zakupu (11 miejsc); garaż w bryle budynku, winda z poziomu garażu
- Źródło: oferta dewelopera: PBF Inwestycje, zaktualizowane: 14.11.2025
- sygnatura ogłoszenia: 31A/M5
Lokalizacja
- Inwestycja: Wzgórze Moniuszki
- Adres: Moniuszki 31, Staszica, Gorzów Wielkopolski, lubuskie
- Otoczenie: osiedle domów jednorodzinnych, osiedle domów wielorodzinnych, gęsta zabudowa miejska, tereny zielone i rekreacyjne
- W pobliżu przedszkole (300m), szkoła podstawowa (500m), szkoła średnia (400m), biblioteka (518m), kino (500m), restauracja, kawiarnia, siłownia, apteka (200m), przychodnia (200m), przystanek autobusowy (150m), przystanek tramwajowy (500m), dworzec kolejowy (900m), supermarket, park (400m), kaufland (300m), galeria askana (500m)
Opis nieruchomości
Zapraszamy do zapoznania się z ofertą przestronnego, 4-pokojowego mieszkania, obejmującego pokój dzienny z aneksem kuchennym, trzy sypialnie, łazienkę, WC (...)
Rozwiń opis

Inwestycja realizowana przez:
PBF Inwestycje
Marek Prokopiuk
Armii Polskiej 28
Gorzów Wielkopolski 66-400
| Mieszkanie31/M1 | 46,30 m² | 9 500 zł/m² | parter/3 | 2 | 439 850 zł |
| Mieszkanie | ||||
|
||||
| 31/M1 |
- Budynek: blok mieszkalny
- Stan wykończenia: deweloperski, możliwe wykończenie wg projektu klienta
- Charakterystyka mieszkania: jednopoziomowe, aneks kuchenny, 1 łazienka
- Ogrzewanie: miejskie
- Powierzchnia dodatkowa: balkon
- Miejsce/a postojowe:: w garażu indywidualnym, przynależne do mieszkania - bez obowiązku zakupu (34 miejsca); garaż w bryle budynku
naziemne, przynależne do mieszkania - bez obowiązku zakupu (9 miejsc)
w garażu wielostanowiskowym, przynależne do mieszkania - bez obowiązku zakupu (11 miejsc); garaż w bryle budynku, winda z poziomu garażu - Udogodnienia: winda
Zapraszamy do zapoznania się z ofertą przestronnego, 2-pokojowego mieszkania, obejmującego pokój dzienny z aneksem kuchennym, sypialnie, łazienkę oraz balkon.
Więcej
sygnatura: 31/M1
| Mieszkanie31/M2 | 58,70 m² | 9 500 zł/m² | parter/3 | 3 | 557 650 zł |
| Mieszkanie | ||||
|
||||
| 31/M2 |
| Mieszkanie31/M3 | 32,40 m² | 10 400 zł/m² | parter/3 | 2 | 336 960 zł |
| Mieszkanie | ||||
|
||||
| 31/M3 |
| Mieszkanie31/M4 | 47,91 m² | 10 100 zł/m² | parter/3 | 3 | 483 891 zł |
| Mieszkanie | ||||
|
||||
| 31/M4 |
| Mieszkanie31/M5 | 41,05 m² | 10 500 zł/m² | parter/3 | 3 | 431 025 zł |
| Mieszkanie | ||||
|
||||
| 31/M5 |
| Mieszkanie31/M6 | 66,30 m² | 9 400 zł/m² | parter/3 | 3 | 623 220 zł |
| Mieszkanie | ||||
|
||||
| 31/M6 |
| Mieszkanie31/M7 | 38,70 m² | 9 800 zł/m² | parter/3 | 2 | 379 260 zł |
| Mieszkanie | ||||
|
||||
| 31/M7 |
| Mieszkanie31A/M1 | 38,70 m² | 9 800 zł/m² | parter/3 | 2 | 379 260 zł |
| Mieszkanie | ||||
|
||||
| 31A/M1 |
| Mieszkanie31A/M2 | 61,80 m² | 9 700 zł/m² | parter/3 | 3 | 599 460 zł |
| Mieszkanie | ||||
|
||||
| 31A/M2 |
| Mieszkanie31A/M3 | 53,55 m² | 10 300 zł/m² | parter/3 | 3 | 551 565 zł |
| Mieszkanie | ||||
|
||||
| 31A/M3 |
Więcej
Marek Prokopiuk
601 775...
601 775 454
95 722 73 03
- Zgłoś błąd lub naruszenie










